Lại câu hỏi: Nếu làm thêm thang máy thì đơn giá tăng bao nhiêu một m2?
Rất nhiều anh em quan tâm và hỏi. Nhiều khi là để chủ nhà cân nhắc phương án. Có nên làm thang máy hay không?
Theo kinh nghiệm nhiều anh em thì làm thêm thang máy mỗi tầng sẽ tăng khoảng 10-12tr (nhân công) và 20-25tr (thô)
Theo như tính toán trong bài này:
- Nhân công: 616-536 = 80tr/7 tầng = 11.4tr/tầng (~226k/m2)
- Phần thô: 1371-1194 = 177tr/7 tầng = 25.2tr/tầng (~500k/m2)
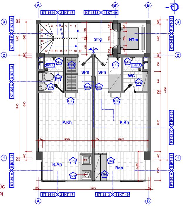
Khách hàng của tôi cũng hỏi tại sao đơn giá cao thế. Do cái này diện tích nhỏ nên gánh đơn giá cao. (tôi chia sẻ con số giả định, chứ dự toán thật còn cao hơn nữa, vì ngăn phòng xây tường nhiều).
Hôm qua còn tư vấn cho một bạn, diện tích còn nhỏ hơn nữa, khoảng 25m2/tầng nhưng cũng làm thang máy vì căn nhỏ này thông sang một căn khác hiện hữu, làm thang máy để dùng chung cho căn kia. Tính ra đơn giá tới hơn 5tr/m2 phần thô.
Bạn cũng hỏi mình sao giá cao thế. Thì bây giờ làm thang máy mỗi tầng thêm 20tr, mà diện tích có hơn 25m2 thì có phải mỗi m2 gánh 800k riêng cho cái thang máy rồi không?
Nếu nhà 100m2 thì thêm 20tr thì mỗi m2 chỉ phải gánh là 200k thôi.
Cũng nói thêm là PM dự toán tự động tính nhanh, nên mấy cái thang máy này chỉ được khoảng 90% thôi. Nên anh em mình khi làm phải coi và điều chỉnh lại một chút phần thang máy.
----------------------
dtPro MyHouse - Báo giá nhanh, dễ trúng thầu và thi công có lời








 English

